
| Бренд | EXCELLENT |
| Подъемная способность | 5-400t |
| Высота подъема | 1-15m |
| Длина пролета | 0-28m |
| Рабочая обязанность | A7-A8 |
| Рабочая среда | высокая температура, высокая запыленность и вредные газы, а также тепловое излучение |
| Сертификат | CE, ISO |
| Место происхождения | Хэнань, Китай |
Кран для разливки чугуна является одним из основных устройств в технологии непрерывной разливки стали. Он в основном используется для плавки металлотранспортера, литья и загрузки горячего металла.
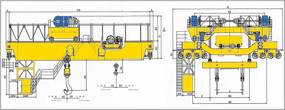
В основном он состоит из коробчатой рамы моста, крюка, механизма передвижения крана и электрической системы. Основной крюк использует грузоподъемное устройство в качестве подъемного устройства для подъема стального ковша, вспомогательный крюк взаимодействует с основным крюком для разливки расплавленной стали и стального шлака, а также других вспомогательных подъемов.

1. Прочные балки. Подкрановые балки имеют сварную конструкцию. Это приводит к снижению собственного веса при высокой степени вертикальной и горизонтальной жесткости и меньшей нагрузке на колеса.
2. Концевая каретка: система перемещения крана, система с приводом от двигателя-редуктора! В двигателе используется двигатель с плавным пуском, что обеспечивает очень стабильный запуск!
3. Долговечность и высокая эффективность!
4. Превосходная термостойкость благодаря термозащитному покрытию, добавленному в нижней части дальнего света!
5. Современное управление кабиной с кондиционером для изоляции операторов от суровых условий.
6.Электрическое оборудование: Электрические системы марки Siemens или Schneider!
7. Длительный срок службы и низкие эксплуатационные расходы!
|
Емкость (T)
|
5
|
10
|
16
|
20
|
32
|
50
|
|
Расширение (m)
|
10.5~31.5
|
|||||
|
Высота подъема (m)
|
6~12
|
|||||
|
Рабочая обязанность
|
M5
|
|||||
|
Скорость подъема (m/min)
|
0.8/5
|
0.8/5
|
0.66/4
|
0.53/3.4
|
0.8/3.3
|
0.53/3.2
|
|
Скорость тыквы (m/min)
|
2~20
|
|||||
|
Крановая скорость (m/min)
|
3~30
|
|||||
|
Рабочая температура (℃)
|
-25~40
|
|||||

Если вы хотите получить цену на наш литейный кран для литья чугуна, пожалуйста, помогите подтвердить детали, как показано ниже:
1. Грузоподъемность? (5тонн 10тонн 16тон или другие?)
2. Высота подъема? (3м 6м 9м 12м..?)
3. Пролет? (Расстояние между центром рельса)
4. Длина хода крана? (Если необходимы направляющие и шина, предоставьте эту информацию)
5. Источник питания у вас местный? (380 В/50 Гц/3P?)
6. Ближайший морской порт? Мы предложим вам цену CFR для справки.



Двухбалочный литейный кран это мощный мостовой кран, специально разработанный для сталелитейных, литейных и металлургических предприятий. Эти краны работают в экстремальных условиях, где требуются высокие температуры, работа с расплавленным металлом и подъем тяжелых грузов.
1. Обращение с расплавленным металлом
Используется в сталелитейном и литейном производстве для подъема и транспортировки ковшей с расплавленным металлом между различными этапами процесса (например, от печей к литейным формам). Разработан, чтобы выдерживать экстремальную жару, пыль и суровые условия работы. Имеет термостойкие компоненты, такие как двигатели, кабели и крючки.
2. Загрузка печи
Литейные краны помогают загружать электродуговые печи (ЭДП), индукционные печи и конвертеры, поднимая и заливая в печь сырье, такое как металлолом и чугун. Специальные приспособления, такие как крюки для ковша, подъемные клещи или электромагниты, обеспечивают безопасное обращение с материалами.
3. Транспортировка горячего металла
Эти краны перемещают ковши с расплавленным металлом с одной станции на другую, например, из печи в литейный цех. Механизмы наклона ковша позволяют контролировать заливку расплавленного металла в формы.
4. Литье и заливка
При непрерывной разливке или разливке слитков литейные краны помогают точно расположить ковши с расплавленным металлом для заполнения.
эффективное и безопасное литье в формы. Помогает минимизировать просыпание и обеспечивает равномерное распределение металла.
5. Обработка готовой продукции
Перемещает тяжелые отливки, слитки, слябы или заготовки из зоны разливки на склад или в блоки дальнейшей обработки. Могут быть оснащены подъемными балками, крюками или зажимами для перемещения предметов различной формы и веса.
Все виды воздушного крана, портального крана, электрического подъема, корзины передачи, промышленной электрической лебеды, радиального/плоского подъема ворот, стальных ворот и т.д.
Да, как производитель продажи 10 тоннных верхних кранов с одной балкой, мы можем предложить все соответствующие запасные части. Такие как двигатель, подъемники, барабаны, колеса, захваты, крюки, рельсы, балки путешествия, закрытый автобусный бар и т.д.
Конкретные параметры, такие как подъемная способность, высота подъема, диапазон, длина кантильвера, если есть, напряжение питания, метод управления и т.д.
Да, конечно. Мы производитель и у нас есть собственная инженерная группа. Они могут разработать подгонянный дизайн в соответствии с вашим требованием. Самое главное, что вы должны сказать нам, что вам нужно.
Перед поставкой каждая продукция будет проверена. Мы будем постоянно проверять качество во время производственного процесса и строго проверять оборудование перед отгрузкой, и мы также отправим вам сертификат качества для каждого крана. Вы также тепло приветствуем приехать на нашу фабрику для осмотра.
Да, у нас есть профессиональная команда установки и были в манycountries, чтобы помочь в установке. lfyou нужно нам предоставить эту услугу, pleaselet нам знать заранее и мы предоставим вам лучшее решение.
У нас есть послепродажная команда для поддержки вас в течение 24 часов.
Наиболее безопасный пакет, выбранный для защиты ваших товаров во время транспортировки.
Платежи Alibaba, Торговые Гарантии Alibaba, T/T, L/C.