
| Бренд | EXCELLENT |
| Загрузочная способность | 5-500 ton |
| Длина пролета | 4-31.5m |
| Высота подъема | 3-50m |
| Скорость подъема | 5/0.38 m/min или подгонянный |
| Скорость движения | 0~40m/min |
| Перекрестная скорость | 0~100 M/Min (VVVF) |
| Трудовые обязанности | A4, A5, A6,A7 |
| Сертификат | CE, ISO |
| Место происхождения | Хэнань, Китай |
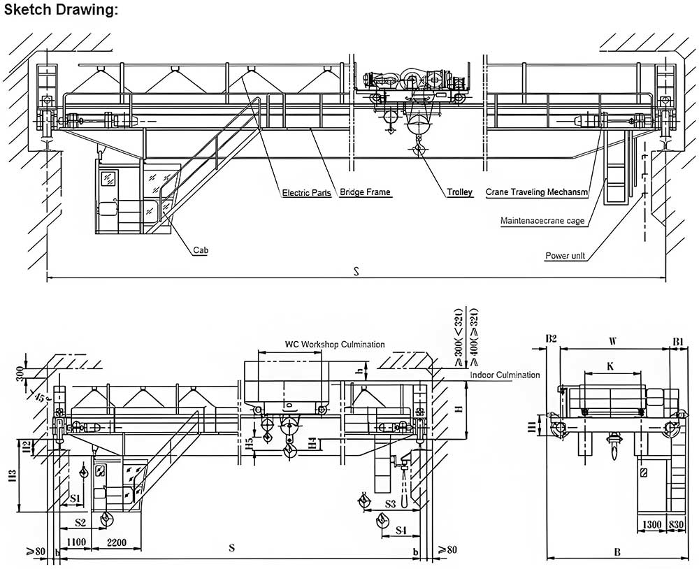
Двухбалочные мостовые краны это промышленные краны большой грузоподъемности, используемые для подъема и перемещения тяжелых предметов в самых разных отраслях: от производственных предприятий до строительных площадок. Эти краны обычно используются для погрузки-разгрузки больших и громоздких грузов, которые невозможно легко поднять или переместить с помощью других типов кранов.
Двухбалочные мостовые краны могут быть изготовлены с различными функциями, такими как автоматическое управление, предохранительные устройства и индивидуальные подъемные приспособления.

1. Повышенная грузоподъемность. Двухбалочные мостовые краны имеют две балки вместо обычной. Это позволяет им переносить гораздо более тяжелые грузы и поднимать их выше, чем однобалочные краны.
2. Повышенная устойчивость. Благодаря двум балкам двухбалочные краны обладают большей устойчивостью, чем однобалочные краны. Это позволяет использовать их в приложениях, где точность и контроль имеют решающее значение.
3. Повышенная долговечность. Двухбалочные краны рассчитаны на интенсивное использование и имеют более длительный срок службы, чем однобалочные краны.
4. Гибкая конструкция. Двухбалочные мостовые краны могут быть спроектированы в соответствии с конкретными потребностями и требованиями, что делает их более универсальными, чем другие типы кранов.
5. Высокая эксплуатационная эффективность. Двухбалочные краны обеспечивают высокую эксплуатационную эффективность, поскольку они могут поднимать большие грузы и охватывать большую площадь, чем однобалочные краны.
6. Повышенная безопасность: двухбалочные краны имеют строгие меры безопасности. Они оснащены аварийной остановкой, защитой от перегрузки и другими функциями безопасности, гарантирующими, что рабочие и оборудование не пострадают.
7. Низкие эксплуатационные расходы: двухбалочные краны имеют меньший износ по сравнению с однобалочными кранами. Двухбалочные краны требуют меньшего обслуживания, что может помочь вам сэкономить деньги в долгосрочной перспективе.
8. Операции с дистанционным управлением. Некоторыми двухбалочными кранами можно управлять с помощью дистанционного управления, что повышает безопасность рабочей силы и позволяет сэкономить время и деньги.

|
Загрузочная способность (t)
|
Пролет/колея рельсов (m)
|
Макс. Высота подъема (M)
|
Класс обязанности |
|
1
|
5~35
|
3~25
|
A5 or A3
|
|
3
|
5~35
|
3~25
|
A5 or A3
|
|
5
|
5~35
|
3~25
|
A5 or A3
|
|
10
|
5~35
|
3~25
|
A5 or A3
|
|
12.5
|
5~35
|
3~25
|
A5 or A3
|
|
15
|
5~35
|
3~25
|
A5 or A3
|
|
16
|
5~35
|
3~25
|
A5 or A3
|
| Настраиваемый | Настраиваемый | Настраиваемый | Настраиваемый |
| Источник питания: 380 ~ 460 В, 50/60 Гц, 3 фазы | |||
| Европейский стандарт дизайна: 1-12,5 тонны | |||
| Китайский стандарт дизайна: 1 ~ 16 тонн | |||
| Класс FM: A, A, S, стандартный | |||
| (Для большей грузоподъемности или класса нагрузки A5-A8 подходящей моделью являются двухбалочные мостовые краны) | |||

Если вы хотите узнать цену на наши двухбалочные мостовые краны, пожалуйста, подтвердите детали, как показано ниже:
1. Грузоподъемность? (5тонн 10тонн 16тон или другие?)
2. Высота подъема? (3м 6м 9м 12м..?)
3. Пролет? (Расстояние между центром рельса)
4. Длина хода крана? (Если необходимы направляющие и шина, предоставьте эту информацию)
5. Источник питания у вас местный? (380 В/50 Гц/3P?)
6. Ближайший морской порт? Мы предложим вам цену CFR для справки.



Двухбалочный мостовой кран — это тип мостового крана, который состоит из двух балок и тележки, идущей по нижней части балок. Этот тип крана обычно используется в различных отраслях промышленности, таких как производство, склады, строительство и транспортировка, для подъема и транспортировки тяжелых грузов.
Некоторые области применения двухбалочного мостового крана:
Все виды воздушного крана, портального крана, электрического подъема, корзины передачи, промышленной электрической лебеды, радиального/плоского подъема ворот, стальных ворот и т.д.
Да, как производитель продажи 10 тоннных верхних кранов с одной балкой, мы можем предложить все соответствующие запасные части. Такие как двигатель, подъемники, барабаны, колеса, захваты, крюки, рельсы, балки путешествия, закрытый автобусный бар и т.д.
Конкретные параметры, такие как подъемная способность, высота подъема, диапазон, длина кантильвера, если есть, напряжение питания, метод управления и т.д.
Да, конечно. Мы производитель и у нас есть собственная инженерная группа. Они могут разработать подгонянный дизайн в соответствии с вашим требованием. Самое главное, что вы должны сказать нам, что вам нужно.
Перед поставкой каждая продукция будет проверена. Мы будем постоянно проверять качество во время производственного процесса и строго проверять оборудование перед отгрузкой, и мы также отправим вам сертификат качества для каждого крана. Вы также тепло приветствуем приехать на нашу фабрику для осмотра.
Да, у нас есть профессиональная команда установки и были в манycountries, чтобы помочь в установке. lfyou нужно нам предоставить эту услугу, pleaselet нам знать заранее и мы предоставим вам лучшее решение.
У нас есть послепродажная команда для поддержки вас в течение 24 часов.
Наиболее безопасный пакет, выбранный для защиты ваших товаров во время транспортировки.
Платежи Alibaba, Торговые Гарантии Alibaba, T/T, L/C.